成都伴闲耍耍论坛,逍遥阁论坛入口,一品楼凤楼论坛真假辨别,全国新媛论坛2025广州qm论坛

通知公告
您当前的位置 :

一、项目概况:

1、招标人全称:中国科学院上海营养与健康研究所

2、项目名称:数字健康部装修改造项目

3、项目地点:上海市徐汇区漕宝路500号7号楼5层东侧

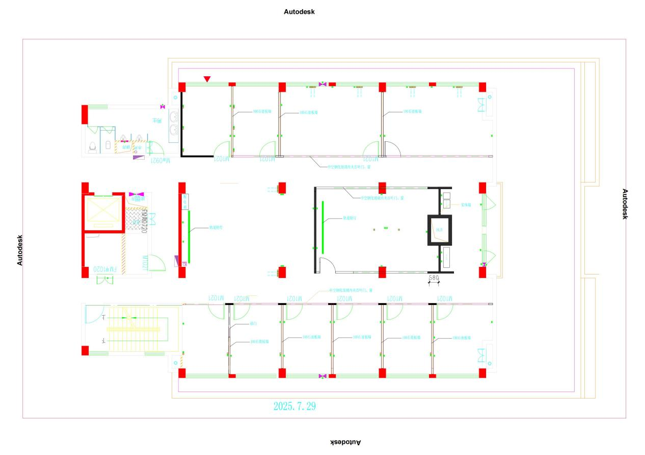
4、项目主要内容如下:本次装修改造区域建筑面积约300㎡;主要包括办公、学习、会议等;建议参选单位仔细现场踏勘。

5、项目要求

拆除原有细胞房和小型实验室,相应吊顶和地板修复垃圾外运等;东西侧墙体采用中空玻璃夹百叶、南北侧墙体采用轻钢龙骨双面石膏板;消防系统按照国家有关规定位移、增补;强电(含照明、插座、电路及配电箱)、弱电(网络、电话)按照使用单位提供的说明和需求安装;原墙、窗、门、踢脚线等进行修补;部分空调位移和新增。

6、项目工期要求:中标单位在签署协议后30天内完成施工。

二、投标人资质要求(资格预审):

1、具有独立的法人资格;投标人没有处于被责令停业,投标资格被取消,财产被接管、冻结,破产等状态,且在最近五年内没有骗取中标和严重违约及重大问题。

2、具备装修施工专业承包三级或以上(有效期内)。

3、项目负责人:具备注册建造师资格证(注册二级建造师或注册一级建造师)、主持过至少1项同类项目的施工管理工作。

4、企业3年内具有同类工程项目的施工业绩。

5、投标人应按照要求合理配置专业管理人员,进行施工现场的管理工作,同时应根据项目建设工作需要随时到场。

三、公告时间:

2025730

四、投标截止时间:

202585日下午1700

五、开标时间及地点:

1、开标时间:202586日(暂定)

2、开标地点:上海市岳阳路320

六、开标时投标人须携带资料:

1、投标单位介绍信或法人授权委托书

2、装修施工专业承包三级或以上(有效期内)

3、营业执照

4、建筑业企业资质证书

5、项目负责人:具有注册建造师资格证(注册二级建造师或注册一级建造师)主持过至少1项同类项目的施工管理工作

6、企业近3年内具有同类工程项目的招标业绩

7、针对本工程的施工组织设计需主要包含以下几部分

a、对本工程进度及质量要求的响应情况及保证措施;

b、针对本工程的施工方案

c、针对本工程安全、文明施工的技术措施;

d、施工总进度计划表;

e、针对本工程主要施工机械选用表、主要劳动力使用计划表;

f、施工现场平面布置图;

以上资料均装订成册并加盖公章的复印件5份。

七、项目控制价25.86万元(包含审价、垃圾清运等所有费用)

八、联系方式:

位:中国科学院上海营养与健康研究所

址:上海市徐汇区漕宝路500号

联系人:周晶王璐

话:021-54971055

箱:jwlzhou@sinh.ac.cn


附平面图


附件: